- Home
- Appartamento
- VENDUTO – APPARTAMENTO
VENDUTO – APPARTAMENTO
Descrizione
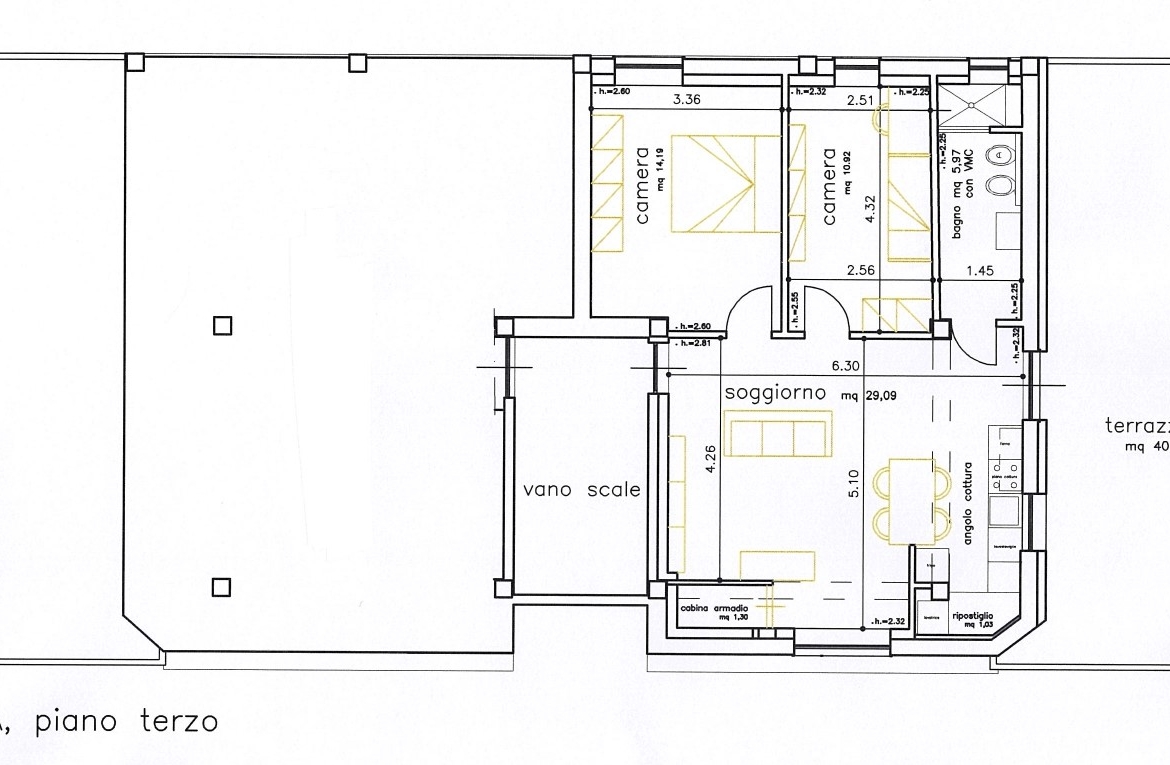
Se desiderate un appartamento con grande terrazza panoramica questa è l’opportunità giusta! Frutto di un intervento di completo rinnovamento, appartamento al piano terzo ed ultimo, corredato da bellissima terrazza abitabile, garage e posto auto. Si compone di soggiorno-angolo cottura con ripostiglio, accesso diretto alla terrazza dalla zona giorno; camera matrimoniale, cameretta e bagno con doccia. Impianto di riscaldamento e raffrescamento di ultima generazione, cappotto termico, infissi nuovissimi a tenuta termica ed acustica e portoncino blindato. Viene venduto ultimato. Classe energetica prevista a fine lavori: A
Indirizzo
Apri in Google Maps-
Indirizzo: Viale Europa - Lammari
-
Provincia: (LU)
-
Codice postale: 55013
-
Comune: Capannori
Dettagli
Aggiornato il Dicembre 4, 2024 at 9:24 am-
Superficie 72 mq
-
Camere da letto 2
-
Locali 3
-
Bagno 1
-
Garage 1
-
Dimensione Garage 18
-
Tipologia Appartamento
-
Stato dell'immobile In vendita
Ulteriori dettagli
-
Terrazza 40 mq
Caratteristiche
Classe energetica
-
Classe energetica: A+
- | Classe energetica A+A+
- A
- B
- C
- D
- E
- F
- G
Confronta Strutture
Confronta
La registrazione al momento è disabilitata.
Forgot Password
Inserisci l’indirizzo email con cui ti sei registrato e riceverai un link per reimpostare la password.

